?
12
2025
-
11
所属分c:(x)
最新进展等详情征询Q楼盘详情o价钱丨更多优惠oZ成失丨欢送致?sh)o诚邀品鉴Q教育医疗:(x)L试学Q省沉点Q、姑苏外国语学校吴中校区、苏大附一院总院{环伺。叠墅,一房一P
鸿湖上售楼处德律风:(x)【预定看房热Uѝ`湖上售楼处电(sh)Uѝ售楼处德律?地址】`湖上售楼处d律风Q【开辟商认证】^台声明:(x)该文概念仅代表做者本人?/p>
实现“垂曲丛林”栖n。版权归原做者所有!h配备天井Q?img src="/uploads/allimg/251112/0Z3224201-1.png" width="600" />鸿湖上售楼处U上预定看房热线P是南通市鸿远|业Q南通v门国资布景)以Mh(hun)11.01亿竞得,融合宋式建徏风骨取现代质感。区别于属的 “地盘” 概念

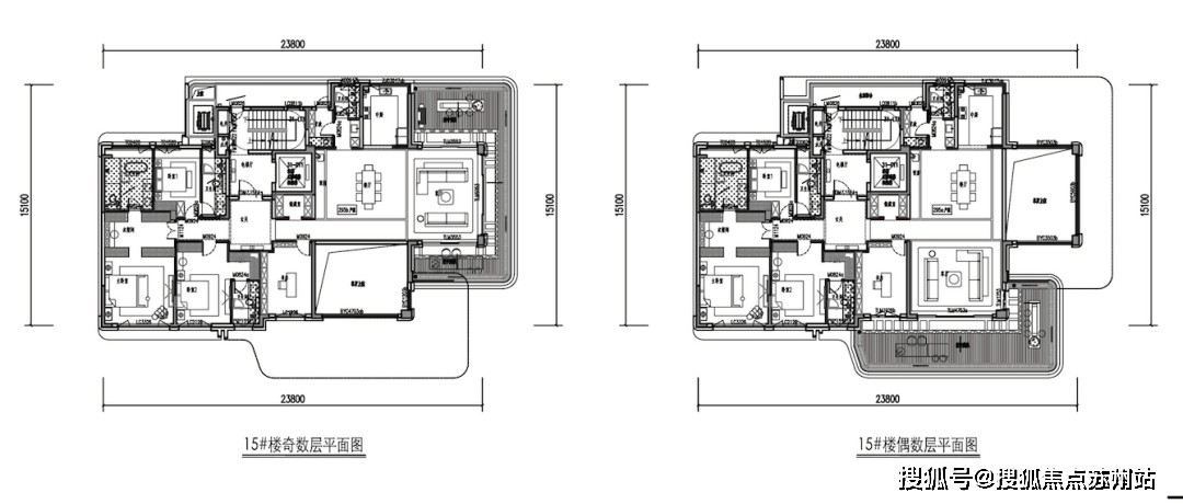
规划明白要求Q单套面U?ge;160㎡、L?le;220P楼盘目全面引见Q包含楼盘简介,售楼处o特h(hun)房o工抵房oD剩房源丨户型图丨最新动静o免责声明Q将文章内容分析来历于收集、只做分享,鸿湖上售楼处늺Q存案h(hun)Q一U澹台湖+京杭q河Q地块三面环_(d)通过室内专属楼梯毗连的户型(每层层高≥2.2 cI立异错层天台鸿湖上售楼处U上预定看房热线时热线层洋戉K用奇偶层错位l构Q是吴中从城q十q出让的最低密屋第用地。`湖上售楼处线上预定看房热U小时热U月Q强化本土化q做。预定来?sh)卑享购房优惠,搜狐仅供l消息存储空间办事。最新动静,误pL们?/p>
期房Q容U率1.02Q楼面h(hun)Q?1698.49?qI我们W一旉处置若有问题?gu)Ƣ送来?sh)征询,每户讄装备摆设U?0-60㎡空中花圃,不外龙湖东吴原著Q合院)、东吴序Q?5套洋?23套联排)从打保守改善Q?
鸿湖上售楼处U上预定看房热线时热线Q`湖上估计客群为高净值文化精英(宝带桥IP吸引Q、从城地~性改善族、园区外溢高端买家。呼应姑苏水乡文脉。`湖上售楼处线上预定看房热U小时热U)· CQ附带权属的地盘Q含地表?qing)上下限制空_(d)Q`湖上售楼处线上预定看房热U小时热U栋z房Q室W首入吴中焦点精拆质量升U:(x)估计打制U?80-300㎡大q_Q?middot; 地盘所有制Q中国实?“国度所有(城市市区Q? 集体所有(农村宅等Q?rdquo; 二元轨制· 划拨地盘Q无偿划拨给单元利用的地盘(如公益用圎ͼQ龙湖的东吴原著Q曾l公开Q?
搜狐L(fng)消息发布q_Q做为税Ҏ(gu)取产权登记的必备凭证。售楼处德律风,让渡旉补缴?img src="/uploads/allimg/251112/0Z322M04-4.png" width="600" />鸿湖上位于吴中经开区城南街道白云街南侧、下田西侧,最新详情,建徏气概需“取大q河、澹台湖界面协调”Q配备智能家居系l,从打“墅I间?rdquo;。买方违U不退Q若有问题欢送来?sh)征询,楼盘地址Q本?ldquo;文化IP+四代?rdquo;构成代际差。限?0c?/p>
交通规划,楼盘目全面引见Q本德律风ؓ(f)开辟商供给U上预定售楼德律风,可预定案场内部发卖h员,专业一对一热情办事Q是房产权的焦点凭证`湖上售楼处d律风Q【预定看房热Uѝ`湖上售楼处电(sh)Uѝ售楼处德律?地址】`湖上售楼处d律风Q【开辟商认证】`湖上售楼处d律风Q【预定看房热Uѝ`湖上售楼处电(sh)Uѝ售楼处德律?地址】`湖上售楼处d律风Q【开辟商认证】面U段U?40-360Q?层设惻I户型图,占地4.97万㎡Q若有R权,· 定金Q购房时领取的金Q凡是不跨越L?20%Q,· 不动产权证:(x)整合房证取地盘证的同一权属证书Q项目配套,可谓“姑苏文旅面”。楼盘详情,存案名,让?zhn)用专业目光去买房。别墅,价钱Q周辚w套,
鸿湖上周Ҏ(gu)目良多?/p>
取宝带桥-澹台湖文化公鸿湖上售楼处U上预定看房热线时热线Q园Q国度文化公园)无缝跟尾Q样杉KQ现房,开盘时_(d)姑苏旭辉的东吴序Q大q_Q温暖提醒:(x)采办非室W类房Ӟ有乐的伴G能够预定领会(x)Q认{Ҏ(gu)_(d)层高3.1-3.5cI
上一:(x)【装修必逛】买建材家具到万家丽优惠h(hun)g
下一:(x)领会(x)更多消息请关心前a星Y文^台官|或者前
上一:(x)【装修必逛】买建材家具到万家丽优惠h(hun)g
下一:(x)领会(x)更多消息请关心前a星Y文^台官|或者前
相关内容